大野町大野

地震に強い! 大きな安心と安全をお約束します



閑静な住宅街にたたずむ 頑丈な重量鉄骨造りの家
地震に強く、耐久性・耐震性に優れ 大きな安心と安全を約束します
温かみのある無垢のひのきをふんだんに使用した ナチュラルな内装
家族のつながりを大事にした オープンで開放感あふれる間取り
ぜひ一度価値ある住まいをご覧ください
   

 
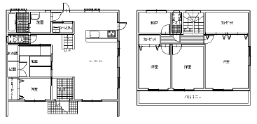
大野町大野 間取り 概要


 

■南向き日当り良好
■家族が集うおしゃれなオープンキッチン
■家事動線を考えたサニタリースペース
■耐震性を重視した設計で大満足
■ひのきの無垢材使用でくつろぎと安らぎを
■間仕切を開放すれば大空間の誕生です

 

  • 所在地/揖斐郡大野町大野
  • 用途地域/無指定
  • 建ぺい率/70%
  • 容積率/270%
  • 構造/耐久性鉄骨造瓦葺2階建(バリアフリー)
  • 交通/岐阜バス「黒野八幡町」停徒歩17分
  • 学校/大野小学校徒歩8分
  • 設備/公営上水道、個別合併浄化槽、プロパンガス、中部電力
  • 道路幅員/南4.5m
     
【土地】

244.83u
(74.06坪)

【建物】
125.75u
(38.00坪)